info@aaconsultrade.com
  |  

OXIGAS

FURNACE FOR HOT METAL

2 Oxigas Furnaces of 25 t Hot metal each

Hot metal CASTING from 25 t Oxigas Furnace

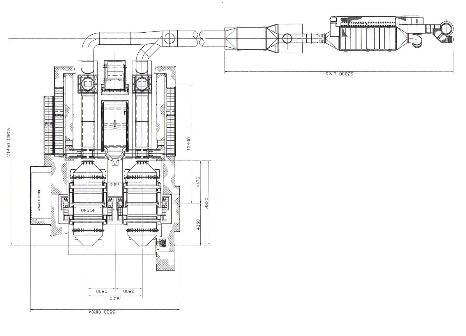
Draw for 25 to Oxigas Furnace

HOT METAL, PhD TECHNOLOGY BY OXIGAS

The Advantages of Hot Metal Charging in Electric Arc Furnaces
The use of hot metal charging in electric arc furnaces (EAFs) is a well-recognized strategy worldwide, offering significant benefits in energy efficiency and productivity. The HM PhD Tech provides a smart, practical, and space-efficient solution for steel plants that lack the infrastructure or footprint to install blast furnaces or similar equipment. It enables the on-site production of hot metal using a compact and clean process.
At the heart of this solution is the Oxigas rotary kiln furnace, which utilizes chemical energy from the controlled combustion of oxygen and gas to melt a mixture of pig iron and steel/iron scrap. This hot metal is then charged into the EAF, replacing a portion of the traditional electrical energy required for melting.

Key Advantages of the HM PhD Tech & Oxigas Furnace

• Environmentally friendly: Reduces harmful emissions typically associated with conventional ironmaking
• Energy efficient: Partially replaces high-cost electrical energy with low-cost chemical energy (oxygen + gas)
• Cost-effective: Produces hot metal at a cost comparable to purchased pig iron
• Compact & scalable: Requires low capital investment and a short erection period
• Ideal for remote operations: Especially suited for plants far from blast furnace pig iron sources
Process Efficiency & Input Reduction
Charging hot metal into the EAF provides multiple operational benefits:
• Significant reduction in electrical energy consumption
• Lower usage of auxiliary materials (e.g., fluxes, electrodes)
• Increased furnace productivity, due to improved melting kinetics
• Enhanced operational stability, reducing refractory wear and maintenance
Moreover, the cost gap between solid pig iron and alternative charge of raw materials (scrap of cast iron and steel) offsets direct operating costs such as:
• Labor
• Refractories
• Oxygen and gas
• Slag formation
A battery of just four Oxigas units can supply approximately 30% of the hot metal requirement for a steel plant producing 500,000 tons of steel per year.
Energy Consumption Reduction & Productivity Gains
The Oxigas solution dramatically improves EAF performance by supplementing electrical energy with exothermic reaction heat from gas and oxygen combustion. This reduces specific energy consumption per ton of steel and increases productivity.
Additionally, the high temperature and reactivity of hot metal enhance melting kinetics, enabling shorter tap-to-tap times (~7.5Mt HMetal/hs) and faster furnace turnaround.
Performance Highlights:
• Up to 35% reduction in electrical energy consumption per ton of steel
• 20–35% increase in productivity, depending on charge composition and operating conditions
• Improved thermal balance, reduced wear on refractories, and greater process stability
These results make the Oxigas system a highly attractive solution for steelmakers aiming to reduce costs, optimize performance, and move toward more sustainable, high-efficiency steel production.
Moreover, the cost gap between solid pig iron and alternative charge of raw materials (scrap of cast iron and steel) offsets direct operating costs such as:

• Labor
• Refractories
• Oxygen and gas
• Slag formation
A battery of just four Oxigas units can supply approximately 30% of the hot metal requirement for a steel plant producing 500,000 tons of steel per year.

Energy Consumption Reduction & Productivity Gains

The Oxigas solution dramatically improves EAF performance by supplementing electrical energy with exothermic reaction heat from gas and oxygen combustion. This reduces specific energy consumption per ton of steel and increases productivity.
Additionally, the high temperature and reactivity of hot metal enhance melting kinetics, enabling shorter tap-to-tap times (~7.5Mt HMetal/hs) and faster furnace turnaround.
Performance Highlights:
• Up to 35% reduction in electrical energy consumption per ton of steel
• 20–35% increase in productivity, depending on charge composition and operating conditions
• Improved thermal balance, reduced wear on refractories, and greater process stability
These results make the Oxigas system a highly attractive solution for steelmakers aiming to reduce costs, optimize performance, and move toward more sustainable, high-efficiency steel production.
Mapa incorporado

Abrir no Google Maps

info@aaconsultrade.com
homeenvelope linkedin facebook pinterest youtube rss twitter instagram facebook-blank rss-blank linkedin-blank pinterest youtube twitter instagram